Robert Obrejan

Consultant imobiliar

Vânzare

680 m²

Spatiu Birouri Unirii- Octavian Goga

Bucuresti-Ilfov / Bucuresti
1.199.000 €

Specificații

Consum total de energie primară 0

Indicele de emisii echivalent CO2 0

Consum total din surse regenerabile 0

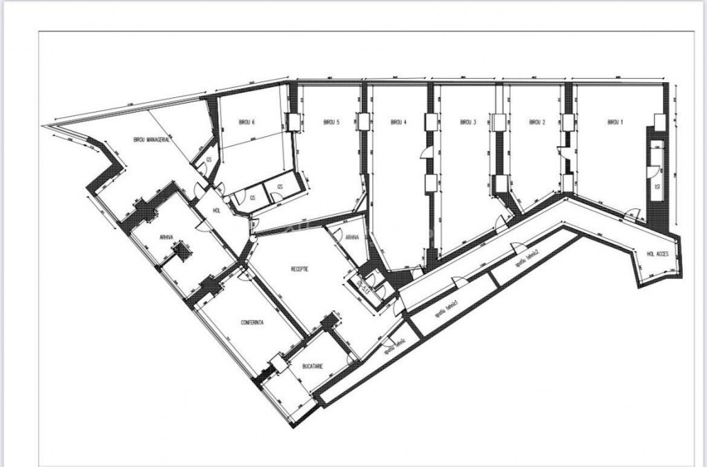
Număr încăperi 7

Înălțime spațiu 3 m

Stadiu construcție Finalizat

Suprafața utilă 680 m²

Suprafață totală 700 m

An finalizare construcție 2012

Nu include TVA Nu

Tip imobil Bloc apartamente

Clasă birouri A

Tip tranzacție Vânzare

Tip vânzător Companie

Spatiu Birouri de Vanzare ndash; Locatie Premium Calea Vitan

Se ofera spre vanzare spatiu de birouri situat intr-o pozitie excelenta, pe Calea Vitan, in zona intersectiei cu Bulevardul Octavian Goga si Calea Dudesti ndash; una dintre zonele cu vizibilitate si acces foarte bune din Bucuresti.

Proprietatea este situata la etajul 3 al unui imobil modern construit in anul 2012, ocupand practic un etaj intreg, ceea ce ofera intimitate si un spatiu ideal pentru desfasurarea activitatilor de birou.

Caracteristici principale


	Suprafata utila: 680 mp
	Etaj: 3 (etaj integral)
	An constructie imobil: 2012
	Finisaje: de buna calitate
	Vizibilitate si acces: excelente


Compartimentare

Spatiul este foarte bine compartimentat, oferind conditii optime pentru desfasurarea activitatilor profesionale:


	birouri individuale si spatii de lucru
	sala de conferinta spatioasa
	receptie elegant amenajata la intrare
	grupuri sanitare atat in unele birouri, cat si pe holul principal
	circulatie interioara practica si eficienta


Avantaje


	pozitie strategica intr-o zona de business foarte bine conectata
	spatiu luminos si bine organizat
	potrivit pentru sediu firma, clinica, call center, firma IT, consultanta sau alte activitati office


Spatiul este liber la vanzare si disponibil imediat.
 Pret negociabil.

Solicită vizionarea proprietății

Alege o zi disponibilă

27 Martie
28 Martie
29 Martie
30 Martie

Alege un interval orar

8:00 - 12:00
12:00 - 15:00
15:00 - 18:00
18:00 - 21:00

Următoarele date de contact oferite de tine vor fi accesibile proprietarului:

Locație

Despre zona "Unirii"

păreri exprimate de 76 de utilizatori, pe o scară de la 1 la 10

Află clasamentul acestui cartier
Sănătate și Siguranță

Sănătate și Siguranță

6.7

Sănătate 7.3

Siguranță 7.9

Calitate aer 5.4

Curățenie 6.5

Zone verzi 6.6

Cultură și Educație

Cultură și Educație

7.2

Cultură 7.3

Educație 7.1

Sport 7.1

Ambianță și Lifestyle

Ambianță și Lifestyle

7.3

Nivel de trai 7.4

Magazine 7.8

Localuri 8.6

Parcări 6.0

Zgomot 6.4

Transport în comun

Transport în comun

8.4

Autobuz 8.5

Tramvai 8.2

Metrou 8.4

Contactează utilizatorul

ID: 4150523

Spatiu Birouri Unirii- Octavian Goga

680 m² | Bucuresti-Ilfov / Bucuresti

1.199.000 €


Vezi anunțuri și din categoriile