Ruxandra Botea

Consultant imobiliar

Vânzare

4 camere | 94 m²

Vanzare apartament 4 camere Lujerului

Bucuresti-Ilfov / Bucuresti
214.999 €

Rată estimată

4.651 Lei/lună

Avans (15%)

160.282 lei

Perioada împrumutului

30 ani

Specificații

Preț negociabil Da

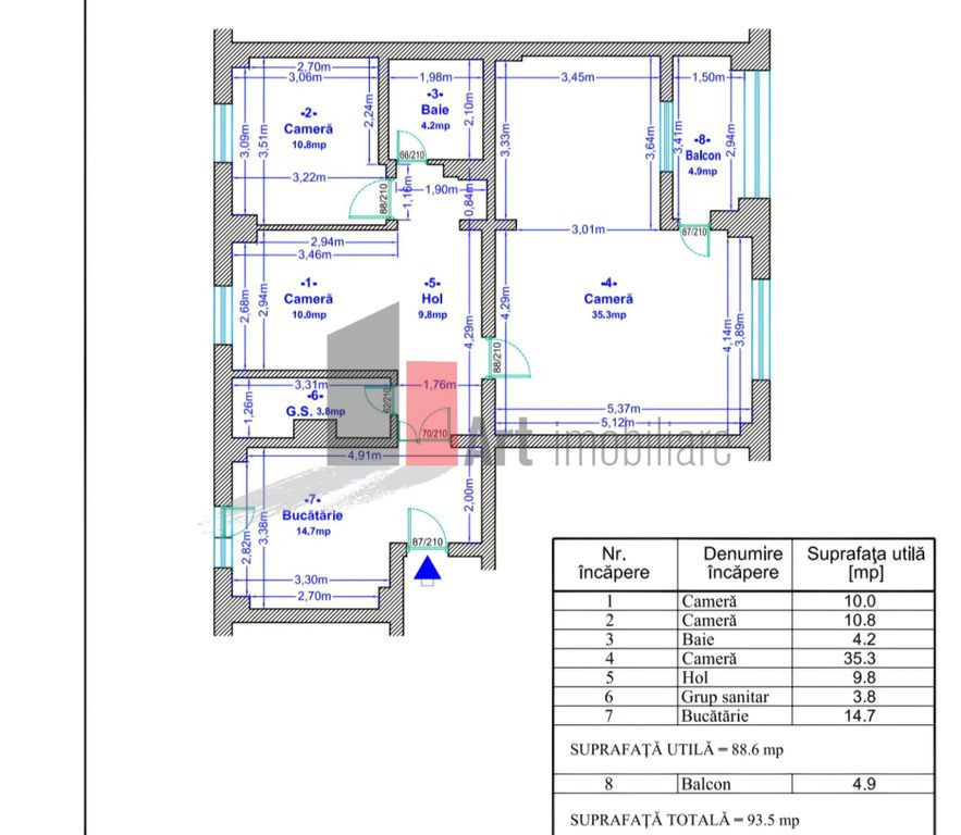
Suprafața utilă 94 m²

Număr camere 4

Tip imobil Bloc apartamente

Compartimentare Decomandat

Număr Băi 2

Etaj 3

Niveluri imobil 8

An finalizare construcție 1994

Confort 1

Ansamblu Rezidențial Nu

Posibilitate parcare Nu

Stare proprietate De renovat

Tip tranzacție Vânzare

Tip vânzător Companie

Oferin spre vanzare apartament de 4 camere cu o suprafata de 93,50 mp. Constructia a fost finalizata in 1994, si are o compartimentare decomandata. Apartamentul se afla la etajul 3, oferind o priveliste frumoasa asupra orasului, cu verere est si vest. Apartamentul este recent renovat, finisajele sunt de calitate, bloc anvelopat.
Locatia este excelenta, in apropiere de statii de autobuz, tramvai ( 41 in fata blocului) si metrou Lujerului la 250 m, facilitand accesul rapid in oras. In jurul apartamentului gasesti restaurante, piata, magazine si centre de sport, scola si gradinita cu program prelungit la 150 m. Parcurile si zonele verzi sunt la o distanta mica, ideale pentru petrecerea timpului liber (parcul Liniei la 300 m). Exista posibilitatea de a instala centrala de apartament teava de gaze ( diferita de cea comuna a blocului) este in fata usii.

Solicită vizionarea proprietății

Alege o zi disponibilă

27 Martie
28 Martie
29 Martie
30 Martie

Alege un interval orar

8:00 - 12:00
12:00 - 15:00
15:00 - 18:00
18:00 - 21:00

Următoarele date de contact oferite de tine vor fi accesibile proprietarului:

Locație

Despre zona "Lujerului"

păreri exprimate de 122 de utilizatori, pe o scară de la 1 la 10

Află clasamentul acestui cartier
Sănătate și Siguranță

Sănătate și Siguranță

6.6

Sănătate 6.9

Siguranță 7.7

Calitate aer 5.7

Curățenie 6.6

Zone verzi 6.1

Cultură și Educație

Cultură și Educație

7.0

Cultură 6.5

Educație 7.5

Sport 7.2

Ambianță și Lifestyle

Ambianță și Lifestyle

6.7

Nivel de trai 7.1

Magazine 8.5

Localuri 7.5

Parcări 4.3

Zgomot 6.3

Transport în comun

Transport în comun

8.6

Autobuz 8.7

Tramvai 8.3

Metrou 8.8

Contactează utilizatorul

ID: 4150412

Vanzare apartament 4 camere Lujerului

4 camere | 94 m² | Bucuresti-Ilfov / Bucuresti

214.999 €