agentia imobiliara Family

Consultant imobiliar

Vânzare

5 camere | 237 m²

Vila la Rosu in Burdujeni

Suceava / Suceava
84.000 €

Rată estimată

1.840 Lei/lună

Avans (15%)

62.622 lei

Perioada împrumutului

30 ani

Specificații

Număr camere 5

Suprafața utilă 237 m²

Suprafață teren 300 m²

Stare proprietate În construcție

Tip tranzacție Vânzare

Tip vânzător Companie

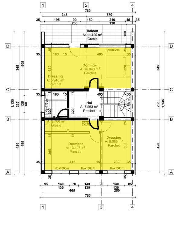
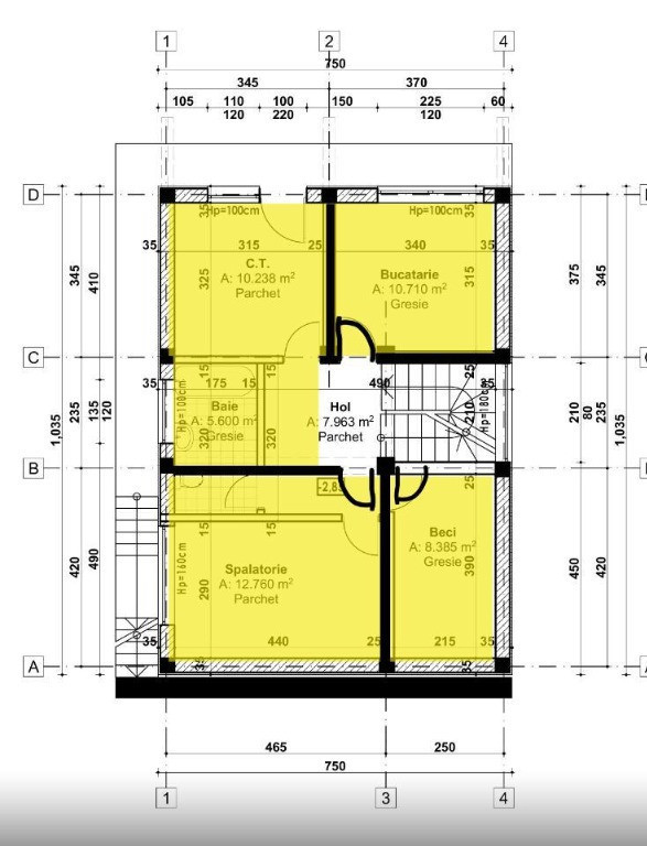
Agentia Imobiliara Family va propune spre vanzare o Vila la rosu, constructie din caramida, edificata in anul 2022, finalizata in proportie de 75%,  situata in zona Burdujeni ( dealul Manastirii). Constructia este structurata pe 3 nivele: Demisol + Parter + Mansarda, avand amprenta la sol de 79 mp, suprafata construita desfasurata de 237 mp, Terenul cu o suprafata de  300 mp, cu deschidere la strada de 12 m,  este partial imprejmuit cu gard din beton pe latura sud-est. ( este concesionat, avand drept de folosinta).Casa este acoperita cu tabla Lindab. Toate utilitatile ( energie electrica, apa, gaz) sunt in apropierea casei, nefiind inca racordate. Este intabulata, libera de sarcini si se vinde asa cum este in stadiul actual.

Solicită vizionarea proprietății

Alege o zi disponibilă

28 Decembrie
29 Decembrie
30 Decembrie
31 Decembrie

Alege un interval orar

8:00 - 12:00
12:00 - 15:00
15:00 - 18:00
18:00 - 21:00

Următoarele date de contact oferite de tine vor fi accesibile proprietarului:

Locație

Despre zona "Burdujeni"

păreri exprimate de 743 de utilizatori, pe o scară de la 1 la 10

Află clasamentul acestui cartier
Sănătate și Siguranță

Sănătate și Siguranță

6.4

Sănătate 6.6

Siguranță 6.7

Calitate aer 6.2

Curățenie 6.3

Zone verzi 6.1

Cultură și Educație

Cultură și Educație

6.7

Cultură 6.1

Educație 7.5

Sport 6.7

Ambianță și Lifestyle

Ambianță și Lifestyle

6.6

Nivel de trai 6.2

Magazine 7.6

Localuri 7.3

Parcări 5.4

Zgomot 6.3

Transport în comun

Transport în comun

7.6

Autobuz 7.6

Tramvai 0.0

Metrou 0.0

Contactează utilizatorul

ID: 3896852

Vila la Rosu in Burdujeni

5 camere | 237 m² | Suceava / Suceava

84.000 €


Vezi și alte anunțuri imobiliare
Apartamente vânzare Suceava-sv - Areni Case-vile vânzare Suceava-sv - Areni Garsoniere vânzare Suceava-sv - Areni Terenuri vânzare Suceava-sv - Areni Apartamente vânzare Suceava-sv - Burdujeni Case-vile vânzare Suceava-sv - Burdujeni Garsoniere vânzare Suceava-sv - Burdujeni Terenuri vânzare Suceava-sv - Burdujeni Apartamente vânzare Suceava-sv - George Enescu Case-vile vânzare Suceava-sv - George Enescu Garsoniere vânzare Suceava-sv - George Enescu Terenuri vânzare Suceava-sv - George Enescu