Mihai Mihai

Companie

Vânzare

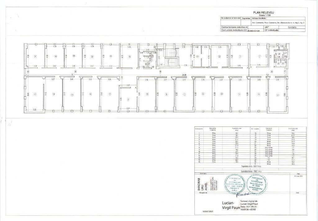
502 m²

City Mall-Lapusneanu-tot etajul 2-21 birouri cu chiriasi-880 mp teren

Constanta / Constanta
890.000 €

Specificații

Suprafața utilă 502 m²

An finalizare construcție 1965

Tip imobil Clădire de birouri

Stadiu construcție Finalizat

Tip tranzacție Vânzare

Tip vânzător Companie

Birouri in Constanta pentru companii de toate dimensiunile.
Birouri sunt in apropiere de : ANAF, SPIT, birourile de relatii cu publicul ale Primarie, City Mall, Piata Tomis 3.
880 mp teren in indiviza - 7 locuri de parcare
9 birouri de 15mp, 10 birouri de 22 mp, 1 birou de 36 mp, 1 birou de 44 mp.
Grad de ocupare 100% in ultimii 5 ani.
Sistem de supraveghere, instalație de iluminat de siguranță, instalație detecție incendiu.
Birourile sunt amenajate cu parchet, ferestre PVC, tavan fals, usi lemn, aer conditionat si jaluzele verticale textile.
Birourile sunt prevazute cu prize pentru internet si retea.
Grupuri sanitare pe etaj : 4
Paza umana 24 ore pentru accesul in cladire.
Interfon pentru accesul pe etaj. Accesul pe etaj se face numai cu cartela sau cod de acces.
Incalzirea: centrala pe gaz, cu termostat gestionat prin telefon.
Consumul cu energia electrica individualizat pe fiecare birou in parte.
Pe etaj, separat de de zona de birouri, sunt asigurate containere pentru reciclare selectiva a deseurilor.
Profile chiriasi : contabilitate, cabinete psihologice, Colegiul Psihologilor, transport, programare, dirigentie santier, publicitate.

Solicită vizionarea proprietății

Alege o zi disponibilă

27 Decembrie
28 Decembrie
29 Decembrie
30 Decembrie

Alege un interval orar

8:00 - 12:00
12:00 - 15:00
15:00 - 18:00
18:00 - 21:00

Următoarele date de contact oferite de tine vor fi accesibile proprietarului:

Locație

Despre zona "City Park Mall"

păreri exprimate de 101 de utilizatori, pe o scară de la 1 la 10

Află clasamentul acestui cartier
Sănătate și Siguranță

Sănătate și Siguranță

7.3

Sănătate 7.6

Siguranță 7.4

Calitate aer 6.6

Curățenie 6.9

Zone verzi 8.1

Cultură și Educație

Cultură și Educație

8.1

Cultură 8.0

Educație 8.3

Sport 8.0

Ambianță și Lifestyle

Ambianță și Lifestyle

7.5

Nivel de trai 7.2

Magazine 8.5

Localuri 8.3

Parcări 6.8

Zgomot 6.5

Transport în comun

Transport în comun

8.0

Autobuz 8.0

Tramvai 0.0

Metrou 0.0

Contactează utilizatorul

ID: 3940744

City Mall-Lapusneanu-tot etajul 2-21 birouri cu chiriasi-880 mp teren

502 m² | Constanta / Constanta

890.000 €


Vezi și alte anunțuri imobiliare
Apartamente vânzare Constanta-ct - Abator Case-vile vânzare Constanta-ct - Abator Garsoniere vânzare Constanta-ct - Abator Terenuri vânzare Constanta-ct - Abator Apartamente vânzare Constanta-ct - Anadolchioi Case-vile vânzare Constanta-ct - Anadolchioi Garsoniere vânzare Constanta-ct - Anadolchioi Terenuri vânzare Constanta-ct - Anadolchioi Apartamente vânzare Constanta-ct - Ancora Case-vile vânzare Constanta-ct - Ancora Garsoniere vânzare Constanta-ct - Ancora Terenuri vânzare Constanta-ct - Ancora