Andrei Badea

Consultant imobiliar

Vânzare

1650 m²

De vânzare în zona Unirii-Spațiu de birouri de 1,650mp

Bucuresti-Ilfov / Bucuresti
3.600.000 €

Specificații

Preț negociabil Da

Nu include TVA Da

Tip imobil Clădire de birouri

Suprafața utilă 1650 m²

Suprafață totală 1900 m

An finalizare construcție 1998

Număr încăperi 85

Posibilitate parcare Da

Stadiu construcție Finalizat

Numărul de locuri de parcare 1

Tip tranzacție Vânzare

Tip vânzător Companie

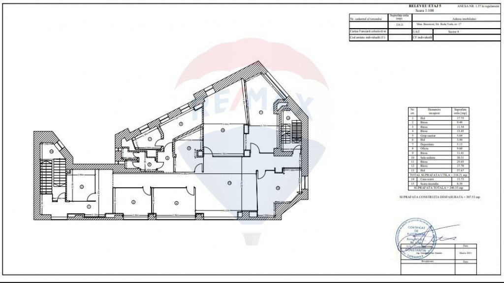
Cladire de birouri SUBSOL-PARTER-5 ETAJE SI TERASA, situata in zona Unirii, la aproximativ 2 minute de mers pe jos de statia de metrou Dimitrie Cantemir. Imobilul are acces facil catre principalele artere ale orasului si beneficiaza de transport public in imediata apropiere.

Constructia a fost  realizata in anul 1998, are o suprafata construita de 2200mp si este amplasata pe un teren cu suprafata de 530 mp, avand o amprenta la sol de 408 mp.

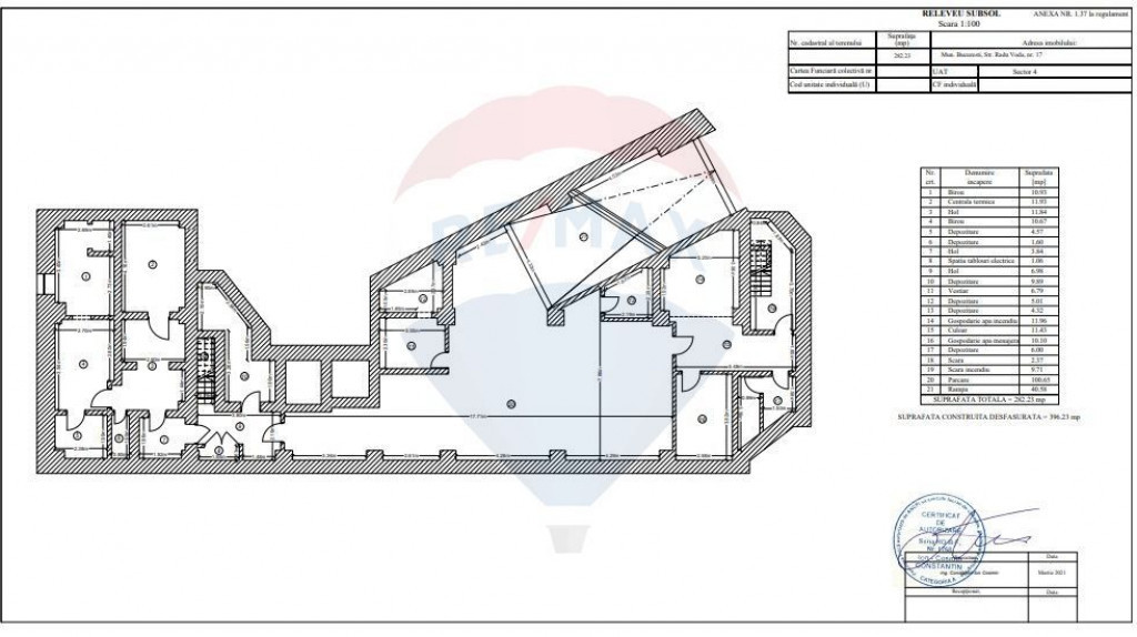
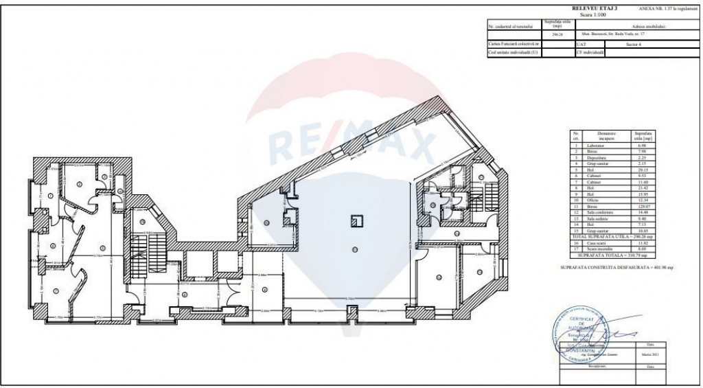
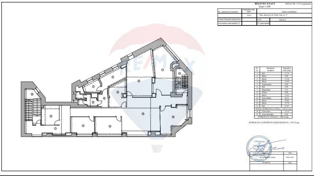
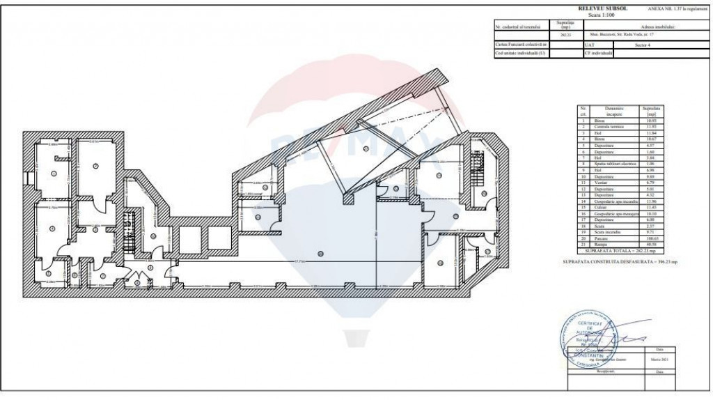
Suprafetele pe nivel sunt urmatoarele:
Subsol – 282.23 mp
Parter – 290.68 mp
Etaj 1 – 305.86 mp
Etaj 2 – 311.86 mp
Etaj 3 – 310.79 mp
Etaj 4 – 300.14 mp
Etaj 5 – 240.33 mp
Terasa – 264.50 mp

Cladirea permite compartimentari flexibile si poate fi utilizata pentru birouri, clinica medicala, centru de servicii, activitati educationale sau alte functiuni similare. Configuratia pe etaje permite atat inchirierea integrala, cat si inchirierea pe niveluri, in functie de necesitatile viitorului utilizator sau investitor.

Datorita amplasarii centrale, suprafetelor generoase si accesului facil la metrou, proprietatea reprezinta o oportunitate potrivita atat pentru investitie, cat si pentru utilizare proprie.

Solicită vizionarea proprietății

Alege o zi disponibilă

04 Aprilie
05 Aprilie
06 Aprilie
07 Aprilie

Alege un interval orar

8:00 - 12:00
12:00 - 15:00
15:00 - 18:00
18:00 - 21:00

Următoarele date de contact oferite de tine vor fi accesibile proprietarului:

Locație

Despre zona "Unirii"

păreri exprimate de 76 de utilizatori, pe o scară de la 1 la 10

Află clasamentul acestui cartier
Sănătate și Siguranță

Sănătate și Siguranță

6.7

Sănătate 7.3

Siguranță 7.9

Calitate aer 5.4

Curățenie 6.5

Zone verzi 6.6

Cultură și Educație

Cultură și Educație

7.2

Cultură 7.3

Educație 7.1

Sport 7.1

Ambianță și Lifestyle

Ambianță și Lifestyle

7.3

Nivel de trai 7.4

Magazine 7.8

Localuri 8.6

Parcări 6.0

Zgomot 6.4

Transport în comun

Transport în comun

8.4

Autobuz 8.5

Tramvai 8.2

Metrou 8.4

Contactează utilizatorul

ID: 4130532

De vânzare în zona Unirii-Spațiu de birouri de 1,650mp

1650 m² | Bucuresti-Ilfov / Bucuresti

3.600.000 €


Vezi anunțuri și din categoriile